Thiết kế cửa hàng trang sức IJC – Charm

Tọa lạc tại một trong những vùng đất du lịch nổi tiếng bậc nhất của Việt Nam: Đà Lạt, dự án thiết kế cửa hàng trang sức IJC – Charm được đội ngũ nhân sự tại Thiết kế nội thất AAU phủ lên một diện mạo sang trọng và cổ điển, đúng với phong cách chủ đạo thường xuất hiện tại nhiều công trình kiến trúc tại thành phố ngàn hoa này. Tân cổ điển – Neoclassic được lựa chọn cho mẫu thiết kế cửa hàng IJC để phù hợp với không khí cổ kính có chút se lạnh cũng như giúp các mẫu trang sức được phô diễn vẻ đẹp hoàn hảo hơn.

Thông tin dự án

  • Tên dự án: Showroom IJC – Charm
  • Mô hình: Cửa hàng trang sức
  • Địa điểm: Đà Lạt
  • Phong cách thiết kế: Neoclassic

Những điểm nổi bật có trong bản thiết kế cửa hàng trang sức IJC – Charm

Mẫu thiết kế cửa hàng trang nhã với phối màu

Nhắc đến một bản thiết kế cửa hàng trang sức sử dụng phong cách tân cổ điển, phối màu nhẹ nhàng và trang nhã hẳn là lựa chọn tối ưu nhất để thể hiện đúng vẻ đẹp sang trọng cần có trong một không gian chuyên kinh doanh phụ kiện đá quý, kim cương. Đối với gam màu của mẫu thiết kế cửa hàng IJC, kiến trúc sư AAU Interior Design cũng đã áp dụng nhận định trên.

Thiết kế cửa hàng trang sức IJC - Charm
Không gian quyền quý của dự án thiết IJC

Beige – Trắng – Nâu chính là tổ hợp quen thuộc nhất khi đề cập đến phối màu cho một không gian kiến trúc, dù nơi đó được tạo ra dưới thể loại phong cách thiết kế nội thất nào. Xuất hiện trong dự án thiết kế cửa hàng trang sức IJC tại Đà Lạt, 3 gam màu trên đã thể hiện tròn vai là một chi tiết nổi bật, tạo nên vẻ đẹp trang nhã của không gian shop trang sức.

Thiết kế cửa hàng trang sức IJC - Charm
Tổ hợp màu trang nhã

Thiết kế cửa hàng đẹp chú trọng vào chất liệu

Không chỉ riêng phong cách Tân cổ điển, bất kỳ mô hình hay thể loại thiết kế nào cũng cần đảm bảo mặt chất lượng trong các vật dụng được bố trí bên trong không gian nội thất. Đối với mẫu thiết kế cửa hàng đẹp IJC, những cái tên tiêu biểu nhất của nội thất hoàng gia đã được lựa chọn. Xuyên suốt bản vẽ thiết kế cửa hàng trang sức này, người nhìn có thể nhận thấy sự hiện diện của: Gỗ, da, kính cao cấp, đá granite. Tất cả các vật liệu này cùng nhau tạo nên một không gian nội thất sang trọng và vương giả.

Thiết kế cửa hàng trang sức IJC - Charm
Dự án thiết kế cửa hàng trang sức ghi điểm với chất liệu cao cấp

Và nếu đã đi theo phong cách Tân cổ điển quyền quý, chắc chắn mẫu thiết kế cửa hàng trang sức đẹp của AAU Interior Design không thể thiếu đi vẻ đẹp lấp lánh của chất liệu Metallic. Với nhiệm vụ bổ trợ cho sự nghiêm nghị và trang nhã của các chất liệu kể trên, những đường viền ánh kim đầy thu hút đã thêm vào sự hào nhoáng hoàn hảo cho bản vẽ thiết kế cửa hàng trang sức IJC.

Thiết kế cửa hàng trang sức tận dụng không gian tốt

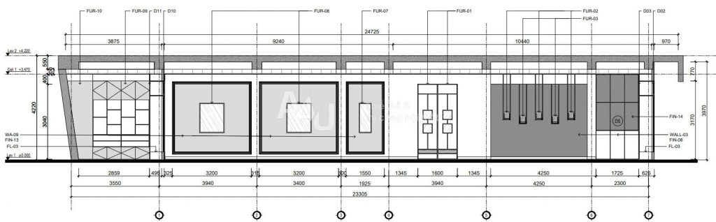
Kiến trúc sư tại AAU Interior Design đã tận dụng tối đa diện tích rộng lớn của không gian dự án thiết kế cửa hàng trang sức IJC để đáp ứng nhu cầu trưng bày những mẫu trang sức đá quý cao cấp của thương hiệu. Cả hai thể loại bố cục đối xứng và 2/3 đều được sử dụng cho các khu vực có trong mẫu thiết kế cửa hàng đẹp tại dự án IJC – Charm Đà Lạt.

Thiết kế cửa hàng trang sức IJC - Charm
Bố cục đối xứng quen thuộc

Cả hai sảnh chính trong bản vẽ thiết kế cửa hàng trang sức đều sử dụng kiểu kệ gắn tường lẫn tủ gương rời cao cấp, gia tăng tối đa diện tích bày trí sản phẩm. Trong đó, sảnh IJC ngoài được kiến trúc sư lựa chọn bố cục đối xứng với 3 hàng tủ song song, còn sảnh trong gây chú ý với việc bố trí các kiểu tủ dáng vòm chiếm phần lớn diện tích vốn có.

Thiết kế cửa hàng trang sức IJC - Charm
Tủ gương vòm cung chiếm trọn ánh nhìn

Một số hình ảnh trong mẫu thiết kế cửa hàng trang sức IJC từ AAU 

Thiết kế cửa hàng trang sức IJC - Charm Thiết kế cửa hàng trang sức IJC - Charm Thiết kế cửa hàng trang sức IJC - Charm Thiết kế cửa hàng trang sức IJC - Charm Thiết kế cửa hàng trang sức IJC - Charm Thiết kế cửa hàng trang sức IJC - Charm

Đi đúng với những đặc trưng có trong phong cách Neoclassic, bản vẽ thiết kế cửa hàng trang sức IJC từ đội ngũ Thiết kế nội thất AAU là một tác phẩm được đánh giá cao về cả kỹ năng chuyên môn lẫn vẻ đẹp mà nó thể hiện. AAU Interior Design rất vinh dự là đơn vị được nhiều khách hàng, đối tác tin tưởng giao phó nhiệm vụ thiết kế cửa hàng cao cấp và hoàn mỹ trên mọi miền đất nước.