Chủ đầu tư CANIFA mong muốn một không gian kết hợp văn phòng và studio đầy năng động đồng thời tin tưởng giao trọng trách thiết kế cho đội ngũ AAU Interior Design. Sau khi nghiên cứu kỹ lưỡng không gian, nhận thấy kiểu văn phòng nhà ống điển hình cùng diện tích không quá lớn nên đội ngũ quyết định chọn phong cách hiện đại để hướng tới sự trẻ trung, thanh lịch. Mẫu thiết kế văn phòng hiện đại ra đời đánh dấu một cột mốc quan trọng cho những dự án lớn mà AAU đảm nhận khẳng định cái nhìn bao quát dù dự án lớn hay nhỏ.
Thông tin dự án
- Tên dự án: CANIFA
- Mô hình: Văn phòng x Studio
- Diện tích: 1200m2
- Địa điểm: Hà Nội
- Phong cách thiết kế: Hiện đại
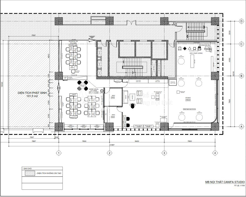
Không gian mỗi khu vực chức năng trong dự án thiết kế văn phòng hiện đại mang một sắc thái riêng
Với những không gian rộng lớn, việc sắp xếp bố trí không gian được coi là nhiệm vụ quan trọng nhất để hướng tới tổng thể chung hợp lý. Dự án thiết kế văn phòng hiện đại CANIFA đã được đội ngũ AAU chia nhỏ thành nhiều khu vực chức năng khác nhau bao gồm không gian chung, khu vực tiếp khách, văn phòng làm việc và studio… Mặc dù mang những sắc thái khác nhau nhưng tổng hòa theo thiên hướng của lối thiết kế hiện đại kết hợp tối giản.
Mẫu thiết kế văn phòng hiện đại có khu vực sảnh và lối đi lại đơn giản nhưng khác biệt

Dành một không gian khá rộng làm khu vực sảnh có vẻ hơi dư thừa nhưng đó lại là một quyết định đúng đắn bởi AAU đã giúp nổi bật được tên thương hiệu mang sắc đỏ trên nền xám. Đây cũng là sắc màu nhận diện thương hiệu của nhãn thời trang nổi tiếng CANIFA dường như đã in sâu vào tiềm thức của mỗi người. Một hệ thống đèn âm trần đồ sộ kết hợp với đèn led gắn trực tiếp vào chữ giúp nổi bật không gian vốn mang màu sắc trung tính thiên lạnh.

Một nét khá đặc biệt tại lối đi lại của mẫu thiết kế văn phòng hiện đại đó là lối phân cách không gian qua màu sắc sàn nhà. Bên cạnh tone be chủ đạo của hệ thống nền là một màu nâu sậm vân gỗ chạy song song với phần mái dẫn đến một không gian khu vực khác. Những đường thẳng thể hiện rõ ràng trong dự án và phần nào khẳng định phong cách hiện đại mà AAU theo đuổi cùng với những nét thiết kế tối giản, không rườm rà tạo nên sự thanh thoát, sang trọng cho không gian.
Khu vực tiếp khách trong dự án thiết kế văn phòng hiện đại được chú trọng

Vẫn là phong cách hiện đại làm chủ đạo nhưng đan xem vào đó một vài chi tiết sang trọng, cầu kỳ hơn một chút để thể hiện được thành ý của chủ doanh nghiệp với đối tác. Những chiếc ghế sofa đặt quanh chiếc bàn hai tầng và thảm lông được sử dụng ở phía dưới sàn. Bức tường được lấp đầy bởi những bức tranh cùng hệ tủ nhựa và AAU không quên đưa những chiếc đèn decor tạo ánh sáng cho không gian phòng tiếp khách của dự án thiết kế văn phòng hiện đại.

Ngoài những gam màu trung tính theo hơi hướng hiện đại như: be, đen, trắng hay ghi xám… thì sắc đỏ cũng được đưa vào để tô điểm thêm cho không gian bớt đơn điệu. Chỉ là những chi tiết nhỏ nhưng với màu sắc rực rỡ đã giúp không gian tươi sáng hơn rất nhiều. Ngoài ra, không thể phủ nhận vai trò của sắc xanh từ những chậu cây giúp không khí luân chuyển, tạo phong thủy cho toàn bộ dự án.
Không gian làm việc với những gam màu đơn giản trong mẫu thiết kế văn phòng hiện đại

Dành trọn một không gian rộng rãi và được ví như huyết mạch của dự án làm khu vực làm việc cho đội ngũ nhân viên. Đây là khu vực tuy màu sắc và vật liệu khá đơn giản nhưng lại chiếm quỹ thời gian thiết kế khá nhiều. Bởi AAU mong muốn thể hiện được đúng chất môi trường năng động mà chủ đầu tư CANIFA đưa ra đồng thời cũng cần đến sự tĩnh lặng, kích thích sáng tạo cho đội ngũ nhân viên.

Đội ngũ AAU quyết định sử dụng những gam màu đơn giản nhất đến từ tone đen, trắng và be, sắc màu chủ yếu đến từ đồ nội thất là những bộ bàn ghế, hệ thống tủ tường để tài liệu hay màu sơn tường, sàn nhà… Sắc trắng giúp tạo hiệu ứng thị giác, không gian như mở rộng hơn, những chi tiết màu đen trên nền trắng tạo điểm dừng của mắt giúp tăng chiều sâu cho không gian nhờ hiệu ứng tương phản.

Ánh sáng được đầu tư khá đồ sộ với hệ đèn âm trần kết hợp decor và ánh sáng tự nhiên giúp mỗi ngóc ngách trong dự án thiết kế văn phòng hiện đại đều được chiếu sáng. Ánh sáng giúp những đồ nội thất vốn đơn sắc trở nên sang trọng hơn, giúp nhân viên như hòa mình cùng với thiên nhiên tươi đẹp cùng cỏ cây.
Dự án thiết kế văn phòng hiện đại có khu vực studio với hệ thống thiết bị đồ sộ

Không gian studio vẫn mang sắc màu hiện đại đến từ sắc trắng của nền tường, màu đen của thiết bị phụ trợ và một không gian làm việc nhỏ cho đội ngũ nhiếp ảnh gia. Bằng cách tối giản hóa mọi đồ nội thất, không gian chỉ dành cho những thiết bị quan trọng nhưng vẫn đầy đủ công năng. Mẫu thiết kế văn phòng hiện đại với phòng studio tách biệt mang tính riêng tư cùng hệ thống đèn điện đồ sộ đủ để phản ánh màu sắc chất lượng nhất.
Những hình ảnh đặc sắc khác của dự án thiết kế văn phòng hiện đại CANIFA



Không gian rộng lớn nhưng nhờ sự sắp xếp tài hoa đến từ đội ngũ AAU Interior Design, dự án thiết kế văn phòng hiện đại CANIFA hiện lên đầy những nét khác biệt và ấn tượng với đầy đủ không gian chức năng. Đảm bảo các yếu tố màu sắc, ánh sáng và sự bố trí hoàn hảo nhất.
